Комерційне приміщення в Івано-Франківську
$107 360
Рекомендований вибір:
Найновіше, Новобудови
Віддаленість від столиці:
618 км
Стан:
Потребує ремонту
Пропозиція:
Власник
Тип стін:
Цегла, Панель піноблок, Монолітно - цегляний
Планування:
Студія
Комісія:
Без комісії
Кімнат:
1
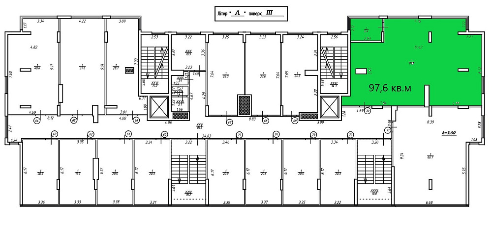
Площа:
97.6 м2
Комерційне приміщення Квартал Галичанка, центр міста, Галицька, 59А, S=97,6 (3 поверх - 1100 $/м2)
№1611 Створено: 19 квітня 2023
Схожі оголошення
Комерційне приміщення в Івано-Франківську у категорії Продаж приміщень вільного призначення в Івано-Франківську на AXL.com.ua онлайн - платформа оголошень в Україні,. Переглянь деталі, фото та контакти продавця. Безкоштовні оголошення — купуй, продавай або обмінюй просто на AXL.com.ua онлайн - платформа оголошень в Україні,!
